Chalet Chaupine
à La Tzoumaz

Chalet pour 12 personnes

Voir les photos

Description

Chalet Chaupine pour 12 personnes à La Tzoumaz, 4 Vallees, Suisse

Points forts
Ce superbe chalet de 5 chambres avec 4,5 salles de bains, un sauna et une table de ping-pong extérieure peut accueillir jusqu'à 12 personnes sur trois étages. Bien que le chalet soit situé à 2 km de la remontée mécanique et des commodités du village, un sentier pédestre mène au village en moins de 350 mètres.

Chambres et salles de bains
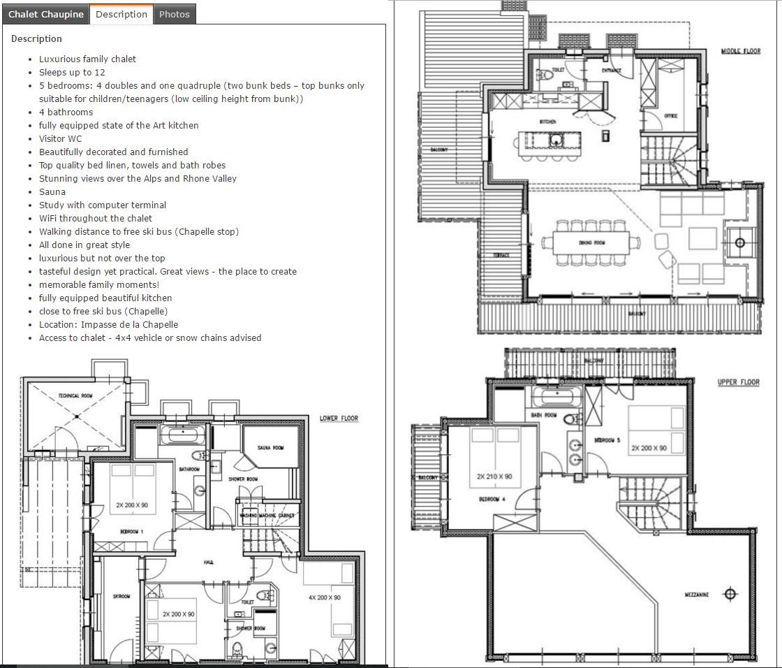
Au total, il y a cinq chambres, quatre salles de bains, deux WC invités.

L'étage inférieur peut accueillir 8 personnes dans trois chambres, avec trois salles de bains :
- Chambre à coucher avec deux lits jumeaux séparés, salle de bain attenante avec baignoire, douche spacieuse, WC, lavabo. Des portes doubles donnent sur la terrasse ensoleillée.
- Chambre à coucher avec un lit double (deux matelas non séparables), salle de bains attenante avec douche, WC, lavabo. Des portes doubles s'ouvrent sur la terrasse ensoleillée.
- Chambre à coucher pour enfants avec lits superposés simples pour 4 personnes, grande télévision à écran plat et lecteur DVD.
- Salle de bain du sauna (avec sauna, douche et lavabo), et WC invités.

L'étage principal est équipé d'un WC invité.

L'étage supérieur peut accueillir 4 personnes dans deux chambres à coucher et une salle de bains :
- Chambre à deux lits jumeaux avec deux lits extra-longs (210 cm) et portes donnant sur le balcon, télévision à écran plat.
- Chambre à lits jumeaux avec deux lits séparés et portes donnant sur le balcon.
- Grande salle de bain commune avec double lavabo, baignoire, douche spacieuse et WC.

Le Chalet Chaupine de La Tzoumaz est équipé d'une chaise haute et d'un lit de voyage pliant (literie non fournie) adaptés aux enfants de moins de 2 ans, et un second est disponible sur demande à l'arrivée. Veuillez noter que, conformément aux instructions de sécurité du fabricant, les matelas supplémentaires ne sont pas fournis avec les lits bébé.

Équipement
L'espace de vie principal à double hauteur est la pièce maîtresse centrale, avec de superbes vues sur la vallée du Rhône et les montagnes environnantes. Ici, la conception structurelle du chalet met l'accent sur les sentiments d'ouverture et d'espace, avec beaucoup de lumière qui entre par les grandes portes vitrées et les fenêtres qui exposent le paysage magnifique tout autour. Le mobilier et les équipements soigneusement sélectionnés séparent cet immense espace en un salon confortable centré autour de la cheminée, une cuisine moderne avec îlot de cuisson et bar pour cinq personnes, et une salle à manger qui peut accueillir confortablement 12 personnes autour de la grande table. La cuisine entièrement équipée a tout ce dont vous pourriez avoir besoin pour cuisiner pendant vos vacances, y compris un four, une plaque de cuisson à 4 anneaux, un congélateur séparé, un four à micro-ondes, une bouilloire, un grille-pain, une machine à café à filtre électrique, une machine à café Nespresso ainsi que 2 ensembles à fondue et 2 ensembles à raclette.

Les portes-fenêtres de ce niveau mènent au balcon, à la terrasse et au jardin supérieur. Le jardin extérieur a deux niveaux, idéal pour les barbecues d'été, les dîners sur la grande table extérieure, une partie de ping-pong ou se prélasser sur les chaises longues. L'entrée se fait à l'étage inférieur par le local à skis, qui dispose de suffisamment d'espace pour le matériel de ski de 12 personnes et d'un chauffage séparé pour s'assurer que les gants et les chaussures de ski sont confortables et secs le lendemain.

Il y a une machine à laver, un sèche-linge, un fer et une planche à repasser à votre disposition.

Détente
Il y a tellement d'options dans ce chalet relaxant si vous pouvez vous éloigner de la vérification de vos emails dans l'espace de bureau séparé avec un ordinateur connecté à Internet. Le sauna est un délice à la fin d'une longue journée, et il est impossible de ne pas se détendre lorsque vous entrez dans l'incroyable salon/salle à manger. La cheminée ouverte est dotée d'un écran entièrement vitré, ce qui permet de l'utiliser pour créer une atmosphère de fond. La mezzanine surplombe le salon, offrant un endroit séparé pour lire ou jouer, ou pour que les enfants puissent brancher leurs jeux d'ordinateur sur la grande télévision à écran plat, ou regarder des films sur le lecteur DVD. Il y a une table de ping-pong à l'extérieur, et la chambre des enfants au rez-de-chaussée se transforme en une salle de jeux séparée avec télévision si vous avez besoin de calme et de tranquillité.

Internet
Le Chalet Chaupine est équipé d'une connexion WIFI haut débit gratuite pour votre usage personnel.

Animaux domestiques
Nous sommes désolés mais le Chalet Chaupine est une propriété sans animaux. Veuillez consulter notre sélection de chalets adaptés aux animaux domestiques si vous souhaitez voyager avec votre animal.

Accès et parking
Il y a un sentier de montagne raide qui grimpe à travers la campagne et vous emmène au centre du village, puis au télécabine. Ce sentier de montagne n'est pas adapté à tous, surtout par temps de neige ou de pluie. Il est possible pour les bons skieurs de suivre cet itinéraire jusqu'à la maison dans de bonnes conditions d'enneigement et de rejoindre le chalet à skis.

Il est conseillé d'avoir au moins une voiture, été comme hiver. Il y a un grand parking pour 2 ou 3 voitures à l'extérieur du chalet. Des pneus d'hiver et/ou des chaînes à neige sont nécessaires en hiver en raison des fréquentes chutes de neige et des 150 derniers mètres de route d'accès escarpée. Une autre aire de stationnement est disponible à 150 m du chalet, au pied de la route d'accès escarpée. Contactez-nous pour les transferts de l'aéroport ou du train.

Hiver
Il y a un arrêt de ski-bus gratuit à seulement 200 mètres en bas de la route du chalet. Sinon, le chalet est situé à seulement 350 m en dessous de l'ascenseur et du village. Il s'agit d'une marche difficile en montée avec des skis, qui ne convient donc pas à tout le monde. Dans de bonnes conditions, les bons skieurs peuvent ensuite revenir à travers les jardins jusqu'à la porte d'entrée. Sinon, il n'y a que 2 km à parcourir jusqu'au grand parking gratuit situé au-dessus du village, d'où vous pouvez descendre à ski jusqu'à la télécabine. La télécabine moderne à haut débit vous transporte de La Tzoumaz au sommet des Savoleyres en moins de 8 minutes, d'où vous pouvez décider de retourner skier sur les pistes tranquilles de La Tzoumaz ou de descendre vers les pistes légendaires de Verbier et les possibilités de hors-piste de classe mondiale dans le vaste domaine skiable des 4 Vallées.

Été
Pendant la haute saison d'été (de début juillet à fin août), nous vous proposons des forfaits piétons VIP gratuits, des forfaits journaliers VTT à moitié prix et toute une série d'autres réductions. La liaison par télécabine avec Verbier fonctionne tous les jours à cette période de l'année de 08h45 à 12h30 et de 13h30 à 16h45, ce qui signifie que vous pouvez facilement accéder à la célèbre station en tant que piéton, ou accompagné de votre vélo ou e-bike. Moyennant un petit supplément, vous pouvez même utiliser les différentes remontées mécaniques pour monter jusqu'au Mont Fort, à 3300 m d'altitude, pour déguster la plus haute fondue d'Europe et admirer d'incroyables panoramas sur le Mont Blanc et le Cervin.

En été, la région se transforme en un paradis de la randonnée et du VTT, avec des centaines de kilomètres de sentiers balisés qui sillonnent les montagnes, inondés de fleurs alpines et d'une variété d'animaux sauvages à observer. Visitez la Maison de la Foret avec ses expositions sur la faune et son sentier naturel des Cinq Sens, point de départ de nombreuses belles randonnées. Les bisses sont des sentiers relativement plats qui suivent l'eau qui ruisselle sur les flancs de la montagne, où pendant des siècles les agriculteurs et les villageois ont canalisé les ruisseaux pour leur propre usage. Ils ont été préservés et constituent aujourd'hui un moyen incroyable de passer une journée ou plus de randonnées faciles avec des vues imprenables sur la vallée du Rhône ou sur le Massif des Combins. Nous vous fournirons de nombreuses informations touristiques, y compris nos suggestions préférées d'excursions d'une journée facilement accessibles depuis La Tzoumaz, qu'il s'agisse de promenades spectaculaires dans les gorges, de fromageries et de festivals romains ou d'idées pour les jours de pluie, comme la visite de lacs souterrains. La route qui serpente au sommet de la montagne jusqu'au café-restaurant panoramique de la Croix-de-Cœur ouvre dès la fonte des neiges et, de là, vous pouvez poursuivre votre route (ou votre vélo) jusqu'à Verbier. Ne manquez pas la Fête nationale suisse à La Tzoumaz le 1er août, ni le célèbre festival de musique live, le Verbier Festival, qui se déroule de mi-juillet à début août.

Pour les familles
Le centre de La Tzoumaz bénéficie d'une patinoire extérieure en hiver et d'une aire de jeux pour enfants en été, avec un parc d'agilité à base de cordes et des équipements plus traditionnels tels que des toboggans.  Un système de canaux ludiques avec de l'eau courante est construit à flanc de colline pour offrir de nombreux divertissements aux enfants plus âgés également. 

À la sortie du village, l'aire de jeux Domus est un endroit fabuleux, souvent baigné par le soleil de fin d'après-midi, avec des balançoires, une tyrolienne, une balançoire à bascule, des cadres à grimper et même de vieux tracteurs sur lesquels grimper.  Il est surplombé par un café en plein air (vérifiez les heures d'ouverture) qui propose des boissons, des snacks et des glaces. Il y a des lapins, des ânes, des chèvres, et il y a aussi de l'escalade sur la falaise locale en arrière-plan (contactez-nous pour l'équipement et les instructeurs).

La Maison de la Forêt dispose d'un café pour les boissons et les snacks (consultez les heures d'ouverture), d'expositions sur la faune et de son sentier naturel des cinq sens avec des activités pratiques à emprunter comme le sifflement des oiseaux et l'apprentissage du dessin. Le sentier de la nature dispose d'un parking pour handicapés et est accessible aux fauteuils roulants et aux poussettes d'enfants.

Tout en haut du village se trouve le "Défi de la Rivière", qui est équipé comme une zone de défi physique en plein air pour les enfants plus âgés sur la rivière.  Il y a des zones de marche sensorielle pour les plus jeunes enfants et une balançoire à panier, ainsi qu'une place de pique-nique à proximité.  

Un court trajet en voiture dans la vallée vous mènera au grand lac du Parc des Iles, avec ses aires de jeux, son parc d'accrobranche, son minigolf, son restaurant, son train miniature et bien plus encore. 

Détails de la réservation
Le prix total est composé d'un coût unique non variable (par réservation) pour couvrir le nettoyage final, le linge de lit et de toilette, et d'autres frais uniques, plus un tarif de location par nuit (par nuit) et les taxes touristiques par nuit (par adulte/enfant et par nuit), plus les frais de site web (spécifiques au site).

Ce prix total comprend les éléments suivants :
- notre accueil chaleureux et notre soutien pendant votre séjour
- WIFI
- lits préparés pour votre arrivée avec nos draps et serviettes de bain
- un kit de bienvenue écologique (nouveau pour l'hiver 2023/4)
- l'utilisation du sauna privatif
- bois de chauffage (utilisation raisonnable)
- les frais de carte de crédit
- électricité et chauffage
- nettoyage final
- taxes de séjour pour le nombre d'adultes/enfants indiqué au moment de la demande/réservation. Veuillez noter qu'en raison de l'inclusion des taxes touristiques dans le calcul, le prix varie en fonction du nombre de personnes qui séjournent. Les adultes sont considérés comme ayant plus de 16 ans, et les enfants de 6 à 15 ans. Au moment de la réservation, il n'est pas nécessaire de déclarer (ou de payer) les enfants de moins de 6 ans à la date du voyage, mais veuillez les mentionner dans la case "Demandes spéciales" afin que nous puissions inclure les enfants dans le préparation du chalet.
- des forfaits gratuits pour les remontées mécaniques d'été pour le nombre d'adultes/enfants indiqué au moment de la réservation (de début juillet à fin août)
- la possibilité d'acheter des leçons de ski (15% rabais) et des locations (15% rabais) à prix réduit (conditions applicables) après avoir réservé des vacances d'hiver avec nous (de décembre à avril).

Non inclus dans le prix :
- À l'arrivée, nous vous demanderons une préautorisation de carte de crédit à utiliser en cas de casse non payée au départ (jusqu'à 1000 CHF). La caution sera annulée si aucun dommage non payé n'est constaté après votre départ.
- Chiens non admis
- Seul le nettoyage de sortie est inclus dans le prix de base. Si vous souhaitez un nettoyage supplémentaire pendant votre séjour, celui-ci peut être organisé sur demande.
- Les draps et les serviettes sont fournies à l'arrivée - si vous avez besoin d'un jeu supplémentaire de draps et de serviettes pendant votre séjour, cela peut être arrangé pour 22CHF par personne.
- L'arrivée standard est à partir de 16h00, et le départ est à 10h00. L'arrivée anticipée à partir de 14h00 peut être achetée jusqu'à une semaine à l'avance pour les arrivées du samedi en hiver et en été.

Nous fonctionnons strictement sur la base du "premier payé = premier réservé" pour les réservations, ce qui signifie que nous ne pouvons pas garantir la disponibilité au-delà de ce que vous voyez sur ce portail de réservation en ligne. Nous vous recommandons donc de confirmer dans les 48 heures afin de garantir la réservation. Vous pouvez réserver et payer par carte de crédit dès maintenant via le portail de réservation en ligne sécurisé en utilisant le lien sur cette page. 50% du montant total est dû à la réservation et le reste est payable 2 mois avant l'arrivée.

Politique d'annulation
Annulation gratuite* pour toute raison dans les 7 jours suivant la réservation.  

 - Plus de 90 jours avant l'arrivée - remboursement de 95%
 - De 30 à 90 jours avant l'arrivée - remboursement de 70 %** 
 - Moins de 30 jours avant l'arrivée - remboursement de 10%**

*Veuillez noter que nos politiques de remboursement ne couvrent pas les frais payés à un site de réservation, car ces frais sont hors de notre contrôle. Nous ne pouvons donc rembourser que 100% du prix que vous avez payé si vous réservez directement avec 4vallees4saisons, sinon le remboursement des frais du site de réservation doit être demandé séparément au site de réservation. 

**Si nous sommes en mesure de revendre le séjour à un autre client, nous pouvons augmenter votre remboursement jusqu'à un maximum de 85%, en fonction du montant de la revente obtenue.   

La Tzoumaz Chalet Chaupine

Présenté par 4vallees4saisons


Grande location de vacances classique à La Tzoumaz, 4 Vallees, Suisse pour 12 personnes. Le logement est situé dans une région montagneuse.

La location a 5 chambres à coucher, 4 salles de bain et 1 toilette pour les invités, réparties sur 3 étages. Le logement offre un jardin avec pelouse et une vue merveilleuse sur la vallée et sur la montagne. Le voisinage d'endroits pour faire d'activités sportives et d'endroits pour sortir rend cette location de vacances un logement convenable pour passer les vacances en Suisse avec votre famille ou vos amis.

Intérieur de la location

  • location de vacances de 3 étages
  • mezzanine avec télévision et lecteur de DVD
  • salle de séjour/ à manger
  • cheminée dans la salle de séjour (bois)
  • balcon
  • 5 chambres à coucher, 4 salles de bain et 1 toilette pour les invités
  • télévision par câble
  • salle de rangement avec machine à laver et sèche-linge

Cuisine

  • cuisine américaine avec cuisinière à induction, four électrique, four à micro-ondes, lave-vaisselle, refrigérateur, congélateur, machine à glaçons, cafetière électrique, bouilloire, mixeur et grille-pain

Chambres à coucher et salles de bain

  • chambre à coucher avec lit kingsize (de 195 x 180cm) et salle de bain en suite
  • chambre à coucher avec 4 lits superposés (de 195 x 90cm), télévision et lecteur de DVD
  • chambre à coucher avec 2 lits simples (de 195 x 90cm) et télévision
  • chambre à coucher avec 2 lits simples (de 195 x 90cm)
  • chambre à coucher avec 2 lits simples (de 195 x 90cm) et salle de bain en suite
  • salle de bain en suite avec seul lavabo, baignoire, douche, toilette et sèche-cheveux
  • salle de bain avec double lavabo, baignoire, douche, toilette et sèche-cheveux
  • salle de bain en suite avec seul lavabo, douche, toilette et sèche-cheveux
  • salle de bain avec sauna, seul lavabo, douche, toilette et sèche-cheveux

Extérieur de la location

  • jardin avec pelouse
  • terrasse
  • barbecue
  • coin pour s'asseoir en plein air et coin repas en plein air
  • 3 places de parking privées

Informations additionnelles

  • piste de ski et remontées méchaniques dans un rayon de 2 kilomètres de la location
  • ville/village plus proche: La Tzoumaz (dans un rayon de 2 kilomètres de la location)
  • rive ou bord plus proche: Lac & Parc des Iles (dans un rayon de 25 kilomètres de la location)
  • parc le plus proche: Defis de la Riviere (dans un rayon de 4 kilomètres de la location)
  • aéroport le plus proche: GVA ( > 100 kilomètres de la location)
  • deuxième aéroport le plus proche: ZRH ( > 100 kilomètres de la location)
  • transport public: bus dans un rayon de 1000 mètres et train dans un rayon de 25 kilomètres de la location
  • interdiction de fumer
  • les animaux domestiques ne sont pas admis
  • La location est très convenable pour les familles avec des enfants, les séances photo et les séances de yoga

Installations et services inclus dans le prix de location de la location

  • ordinateur et internet (WiFi)
  • aspirateur et fer et planche à repasser
  • literie et serviettes
  • ping pong
  • chauffage par le sol
  • sauna
  • lits enfant/lits bébé (sur demande)

Divertissement et activités de loisirs pour les vacances à La Tzoumaz, 4 Vallees

  • bar (dans un rayon de 5 kilomètres du logement)
  • parc aquatique (Les Bains de Saillon) (dans un rayon de 25 kilomètres du logement)

Choses à voir et culture à La Tzoumaz, 4 Vallees

  • église (Chapelle de l'Ascension) (dans un rayon de 5 kilomètres de l'hébergement)
  • monument (La Vidondee) et bâtiment architectural (Iserables Raccards) (dans un rayon de 25 kilomètres de l'hébergement)

Activités sportives

  • randonnée pédestre, mountainbiking et ciclisme (dans un rayon de 1000 mètres de la location)
  • tennis, ski et escalade (dans un rayon de 5 kilomètres de la location)
  • pêche (dans un rayon de 10 kilomètres de la location)
  • surf (dans un rayon de 25 kilomètres de la location)

 

 
Plus...
Moins...

Notez que pour ce logement une caution de Fr 1.000,00 est exigée. Pour plus d’informations s’il vous plaît consultez nos Conditions de Location.

Numero de registre oficiel de l'hebergement: 1190700

IMPORTANT À SAVOIR: Les prix pour Chalet Chaupine à La Tzoumaz sont indiqués sur la liste des prix par semaine, y compris les frais supplémentaires. Cela ne signifie pas que vous devez toujours louer à la semaine. En dehors de la haute saison, vous pouvez choisir librement votre jour d'arrivée et de départ en cliquant sur le calendrier des disponibilités aux dates souhaitées, la location est calculée automatiquement. Si vous le souhaitez, vous pouvez réserver directement en ligne avec confirmation immédiate.

Équipements

  • Accès à la piste de ski à moins de 2 km.
  • Bars et restaurants à moins de 2 km.
  • Calendrier de disponibilité en temps réel
  • CD ou DVD
  • Chauffage
  • Cheminée extérieure / Barbecue
  • Cheminée ouverte
  • Connexion Internet
  • Court de tennis à moins de 2 km.
  • Cyclisme à moins de 200 m.
  • Escalade à moins de 3 km.
  • Jardin
  • Lave-linge et sèche-linge
  • Lave-vaisselle
  • Linge de lit compris dans le prix
  • Logement à trois niveaux.
  • Logement adapté au nombre spécifié de personnes.
  • Logement non-fumeur
  • Micro-ondes
  • Parking privé
  • Sauna
  • Sentiers de randonnée à moins de 200 m.
  • Serviettes
  • Supermarché à moins de 2 km.
  • Table de ping-pong
  • Taille de la parcelle 669 m2.
  • Taille du bâtiment 250 m2.
  • Télésiège à moins de 2 km.
  • Télévision
  • Télévision par câble/satellite
  • VTT à moins de 200 m.

Disponibilité

Cliquez sur les dates d'arrivée et de départ pour calculer le prix de la location.
Disponible
Dates choisies
Disponible sur demande
Prix ​​sur demande
Arrivée non autorisée
Départ interdit
Indisponible
octobre 2025
lumamejevesadi
  12345
67891011
12
13
14
15
16
17
18
19
20
21
22
23
24
25
26
27
28
29
30
31
  
       
novembre 2025
lumamejevesadi
     
1
2
3
4
5
6
7
8
9
10
11
12
13
14
15
16
17
18
19
20
21
22
23
24
25
26
27
28
29
30
       
décembre 2025
lumamejevesadi
       
1234567
89101112
13
14
15
16
17
18
19
20
21
22232425262728
293031    
janvier 2026
lumamejevesadi
   1234
567891011
12131415161718
19202122232425
262728293031 
       
février 2026
lumamejevesadi
      1
2345678
9101112131415
16171819202122
232425262728 
       
mars 2026
lumamejevesadi
      1
23456
7
8
9
10
11
12
13
14
15
16
17
18
19
20
21
22
23
24
25
26
27
28
29
3031     
avril 2026
lumamejevesadi
  123
4
5
6
7
8
9
10
11
12
13
14
15
16
17
18
19
20
21
22
23
24
25
26
27
28
29
30
   
       
mai 2026
lumamejevesadi
    
1
2
3
4
5
6
7
8
9
10
11
12
13
14
15
16
17
18
19
20
21
22
23
24
25
26
27
28
29
30
31
       
juin 2026
lumamejevesadi
       
1
2
3
4
5
6
7
8
9
10
11
12
13
14
15
16
17
18
19
20
21
22
23
24
25
26
27
28
29
30
     
juillet 2026
lumamejevesadi
  
1
2
3
4
5
6
7
8
9
10
11
12
13
14
15
16
17
18
19
20
21
22
23
24
25
26
27
28
29
30
31
  
       
août 2026
lumamejevesadi
     
1
2
3
4
5
6
7
8
9
10
11
12
13
14
15
16
17
18
19
20
21
22
23
24
25
26
27
28
29
30
31
      
septembre 2026
lumamejevesadi
 
1
2
3
4
5
6
7
8
9
10
11
12
13
14
15
16
17
18
19
20
21
22
23
24
25
26
27
28
29
30
    
       
octobre 2026
lumamejevesadi
   
1
2
3
4
5
6
7
8
9
10
11
12
13
14
15
16
17
18
19
20
21
22
23
24
25
26
27
28
29
30
31
 
       
novembre 2026
lumamejevesadi
      
1
2
3
4
5
6
7
8
9
10
11
12
13
14
15
16
17
18
19
20
21
22
23
24
25
26
27
28
29
30
      
décembre 2026
lumamejevesadi
 
1
23456
78910111213
14151617181920
21222324252627
28293031   
       

Carte

Avis

Ci-dessous voyez-vous la moyenne évaluation de nos clients pour le logement Chalet Chalet Chaupine pour chaque catégorie du logement, ainsi que l'évaluation globale.

Les cotées pour chaque catégorie est de 1 à 10, 10 et le plus grand nombre de points plus petite 1 chaque catégorie.

9 Note moyenne 25 Évaluations
Intérieur: 9,2
Extérieur: 8,4
Intimité et tranquillité: 9
Jardin et piscine: 8,4
Vue: 9,5
Cuisine: 8,9
Salles de bains: 9,4

Pas encore prêt à réserver ? Contactez-nous

Champ obligatoire
Mauvais format
Champ obligatoire
Champ obligatoire
Pour continuer, vous devez accepter notre politique de confidentialité

4vallees4saisons.com