Chalet Chaupine
Unterkunft in La Tzoumaz, 4 Vallees

Chalet für 12 Gäste in La Tzoumaz, 4 Vallees

Fotos ansehen

Beschreibung

Chalet Chaupine für 12 Gäste in La Tzoumaz, 4 Vallees, Schweiz

Höhepunkte
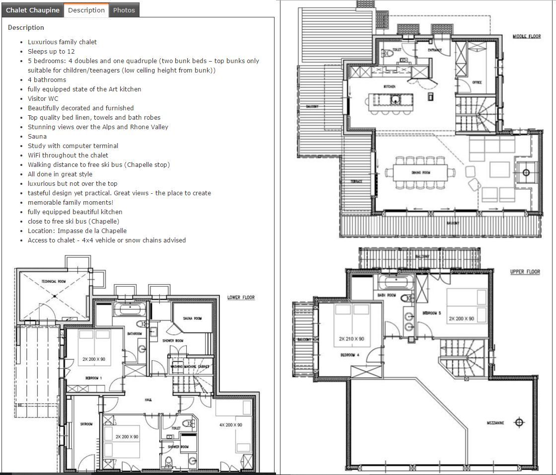
Dieses atemberaubende 5-Schlafzimmer-Chalet mit 4,5 Badezimmern, Sauna und Tischtennis im Freien bietet auf drei Etagen Platz für bis zu 12 Personen. Obwohl das Chalet 2 km auf der Straße vom Skilift und den Dorfeinrichtungen entfernt ist, führt ein Fußweg in weniger als 350 m ins Dorf.

Schlafräume und Bäder
Insgesamt gibt es fünf Schlafzimmer, vier Bäder und zwei Gäste-WCs.

Die untere Etage bietet Platz für 8 Personen in drei Schlafzimmern mit drei Bädern:
- Schlafzimmer mit zwei getrennten Einzelbetten, eigenes Badezimmer mit Badewanne, geräumiger Dusche, WC, Waschbecken. Flügeltüren führen auf die sonnige Terrasse.
- Schlafzimmer mit Doppelbett (zwei nicht trennbare Matratzen), eigenes Bad mit Dusche, WC, Waschbecken. Flügeltüren führen auf die Sonnenterrasse.
- Kinderzimmer mit Etagenbetten für 4 Personen, großem Flachbildfernseher und DVD-Spieler.
- Saunabad (mit Sauna, Dusche und Waschbecken) und Gäste-WC.

In der Hauptwohnebene befindet sich ein Gäste-WC.

Das Obergeschoss bietet Platz für 4 Personen in zwei Schlafzimmern mit einem Bad:
- Zweibettzimmer mit zwei extralangen (210 cm) Betten und Türen zum Balkon, Flatscreen-TV.
- Zweibettzimmer mit zwei getrennten Betten und Balkontüren
- Großes, gemeinsames Badezimmer mit Doppelwaschbecken, Badewanne, großer Dusche und WC

La Tzoumaz Chalet Chaupine ist mit einem Hochstuhl und einem klappbaren Reisebett (ohne Bettzeug) ausgestattet, die für Kinder unter 2 Jahren geeignet sind, und ein zweites ist auf Anfrage bei der Ankunft verfügbar. Bitte beachten Sie, dass gemäß den Sicherheitshinweisen des Herstellers keine zusätzlichen Matratzen zu den Kinderbetten mitgeliefert werden.

Ausstattung
Der große, doppelhohe Wohnbereich ist das zentrale Herzstück und bietet einen herrlichen Blick auf das Rhonetal und die umliegenden Berge. Die Bauweise des Chalets unterstreicht das Gefühl von Offenheit und Weite, mit viel Licht durch die großen Glastüren und Fenster, die den Blick auf die herrliche Landschaft freigeben. Die sorgfältig ausgewählten Möbel und Einrichtungsgegenstände unterteilen diesen riesigen Raum in einen gemütlichen Wohnbereich, der sich um den offenen Kamin gruppiert, eine moderne Küche mit Kochinsel und Bar, die Platz für fünf Personen bietet, und einen Essbereich, der bequem Platz für 12 Personen an einem großen Tisch bietet. Die voll ausgestattete Küche verfügt über alles, was Sie zum Kochen im Urlaub brauchen: Backofen, 4-Platten-Herd, separater Gefrierschrank, Mikrowelle, Wasserkocher, Toaster, elektrische Filterkaffeemaschine, Nespresso-Kaffeemaschine sowie 2 Fondue- und 2 Raclette-Sets.

Terrassentüren auf dieser Ebene führen auf den Balkon, die Terrasse und den oberen Garten. Der Garten besteht aus zwei Ebenen und eignet sich hervorragend für sommerliche Grillabende, Abendessen am großen Tisch, eine Partie Tischtennis oder zum Faulenzen auf den Liegestühlen. Der Eingang befindet sich in der unteren Etage und führt durch den Skiraum, der genügend Platz für die Skiausrüstung von 12 Personen bietet und über eine separate Heizung verfügt, damit Handschuhe und Skischuhe am nächsten Tag wieder bequem und trocken sind.

Eine Waschmaschine, ein Trockner, ein Bügeleisen und ein Bügelbrett stehen Ihnen zur Verfügung.

Entspannend
Es gibt so viele Möglichkeiten in diesem entspannenden Chalet, wenn Sie sich davon distanzieren können, Ihre E-Mails im separaten Büroraum mit internetfähigem Computer zu überprüfen. Die Sauna ist eine Wohltat am Ende eines langen Tages, und es ist unmöglich, nicht zu entspannen, wenn Sie in den unglaublichen Wohn-/Essbereich treten. Der offene Kamin hat eine vollständige Glasabdeckung, so dass er als Hintergrundatmosphäre genutzt werden kann. Der Mezzaninbereich mit Blick auf das Wohnzimmer bietet einen separaten Platz zum Lesen oder Spielen, oder für die Kinder, um ihre Computerspiele an den großen Flachbildfernseher anzuschließen oder Filme auf dem DVD-Player anzusehen. Es gibt eine Tischtennisplatte im Freien, und das Kinderzimmer im Erdgeschoss kann in ein separates Spielzimmer mit Fernseher umgewandelt werden, wenn Sie etwas Ruhe brauchen.

Internet
Das Chalet Chaupine verfügt über einen kostenlosen WIFI-Internetzugang mit hoher Geschwindigkeit für Ihren privaten Gebrauch.

Haustiere
Es tut uns leid, aber das Chalet Chaupine ist haustierfrei. Bitte sehen Sie sich unsere Auswahl an haustierfreundlichen Chalets an, wenn Sie mit Ihrem Haustier reisen möchten.

Zugang und Parken
Es gibt einen steilen Wanderweg, der durch die Landschaft ansteigt und Sie zum Dorfzentrum und dann zur Telefonkabine führt. Dieser Bergpfad ist nicht für jedermann geeignet, insbesondere bei Schnee oder Regen. Gute Skifahrer können bei guten Schneeverhältnissen auf diesem Weg nach Hause fahren und die Hütte auf Skiern erreichen.

Mindestens ein Auto ist sowohl im Sommer als auch im Winter ratsam. Vor der Hütte gibt es ausreichend Parkplätze für 2 bis 3 Autos. Wegen der häufigen Schneefälle und der letzten 150 m der steilen Zufahrtsstraße sind im Winter Winter Winterreifen und/oder Schneeketten erforderlich. Ein alternativer Parkplatz befindet sich 150 m von der Hütte entfernt am Fuße der steilen Zufahrtsstraße. Kontaktieren Sie uns für den Transfer vom Flughafen oder der Bahn.

Winter
Es gibt eine kostenlose Skibushaltestelle nur 200 m bergabwärts vom Chalet entfernt. Alternativ dazu liegt das Chalet nur 350 m unterhalb des Lifts und des Dorfes. Es ist ein anspruchsvoller Spaziergang bergauf mit Skiern, so ist nicht für jedermann geeignet. Bei guten Bedingungen können gute Skifahrer mit den Skiern durch die Gärten bis zur Haustür zurückfahren. Ansonsten sind es nur 2 km bis zum großen kostenlosen Ski-in- und Ski-out-Parkplatz oberhalb des Dorfes, von wo aus Sie mit den Skiern bis zur Telekabine abfahren können. Die moderne Hochgeschwindigkeits-Telekabine bringt Sie in weniger als 8 Minuten von La Tzoumaz auf den Gipfel der Savoleyres, von wo aus Sie entscheiden können, ob Sie auf den ruhigen Pisten von La Tzoumaz zurückfahren oder zu den legendären Pisten von Verbier und den erstklassigen Off-Piste-Möglichkeiten im riesigen 4-Valleys-Skigebiet abfahren möchten.

Sommer
In der Hochsaison (von Anfang Juli bis Ende August) bieten wir Ihnen kostenlose VIP-Fußgänger-Liftpässe, Mountainbike-Tageskarten zum halben Preis und eine Reihe weiterer Ermäßigungen. Die Telekabinenverbindung nach Verbier ist zu dieser Jahreszeit täglich von 08:45 bis 12:30 Uhr und von 13:30 bis 16:45 Uhr in Betrieb, so dass Sie den berühmten Skiort bequem als Fußgänger oder in Begleitung Ihres Fahrrads oder E-Bikes erreichen können. Gegen einen kleinen Aufpreis können Sie sogar verschiedene Bergbahnen benutzen, um auf den Mont Fort auf 3300 m zu gelangen, wo Sie das höchste Fondue Europas und ein unglaubliches Bergpanorama mit dem Mont Blanc und dem Matterhorn erwartet.

Im Sommer verwandelt sich die Gegend in ein Wander- und Mountainbike-Paradies mit Hunderten von Kilometern markierter Wege, die die Berge durchziehen und in denen man Alpenblumen und eine Vielzahl von Wildtieren beobachten kann. Besuchen Sie das Maison de la Foret mit seinen Wildtierausstellungen und seinem Naturlehrpfad der fünf Sinne, der Ausgangspunkt für zahlreiche schöne Wanderungen ist. Die Bisses sind relativ flache Wanderwege, die dem Wasser folgen, das an den Berghängen entlangfließt, wo Bauern und Dorfbewohner jahrhundertelang die Bäche für ihren eigenen Gebrauch kanalisierten. Sie sind erhalten geblieben und bieten heute die Möglichkeit, einen oder mehrere Tage auf leichten Wanderungen mit atemberaubenden Ausblicken über das Rhonetal oder auf das Massif des Combins zu verbringen. Wir versorgen Sie mit einer Fülle von touristischen Informationen, einschließlich unserer Lieblingsvorschläge für Tagesausflüge, die von La Tzoumaz aus leicht zu erreichen sind, von spektakulären Schluchtenwanderungen, Käsereien und römischen Festen bis hin zu Ideen für Regentage, wie z. B. Touren zu unterirdischen Seen. Sobald der Schnee schmilzt, wird die Straße, die sich den Berggipfel hinauf zum Panorama-Café-Restaurant Croix-de-Coeur schlängelt, geöffnet. Von hier aus können Sie mit dem Auto (oder dem Fahrrad) bis nach Verbier hinunterfahren. Verpassen Sie auf keinen Fall die Schweizer Nationalfeier in La Tzoumaz am 1. August oder das berühmte Verbier Festival mit Live-Musik, das von Mitte Juli bis Anfang August stattfindet.

Für Familien
Das Zentrum von La Tzoumaz verfügt im Winter über eine Eislaufbahn und im Sommer über einen Kinderspielplatz, der neben traditionellen Geräten wie Rutschen auch einen Seilpark umfasst. Ein in den Hang eingelassenes Kanalsystem mit fließendem Wasser sorgt auch bei älteren Kindern für viel Unterhaltung.

Am Ausgang des Dorfes befindet sich der Domus-Spielplatz, der oft in der späten Nachmittagssonne liegt. Hier gibt es Schaukeln, eine Seilrutsche, eine Wippe, Klettergerüste und sogar alte Traktoren, auf die man klettern kann. Darüber hinaus gibt es ein Café im Freien (Öffnungszeiten beachten), das Getränke, Snacks und Eis anbietet. Es gibt Kaninchen, Esel und Ziegen, und im Hintergrund kann man am örtlichen Felsen klettern (fragen Sie uns nach Ausrüstung und Lehrern).

Im Maison de la Foret gibt es ein Café mit Getränken und Snacks (Öffnungszeiten beachten), Ausstellungen über die Tierwelt und einen Naturlehrpfad der fünf Sinne mit praktischen Aktivitäten wie Vogelpfeifen und Zeichnen lernen. Der Naturlehrpfad verfügt über Behindertenparkplätze und ist für Rollstühle und Kinderwagen zugänglich.

Ganz oben im Dorf befindet sich der "Defis de la Riviere", der als Outdoor-Wettkampfplatz für ältere Kinder am Fluss eingerichtet ist. Für jüngere Kinder gibt es einen Sinnesparcours, eine Korbschaukel und einen Picknickplatz in der Nähe.

Eine kurze Fahrt talabwärts bringt Sie zum großen See des Parc des Iles mit Spielplätzen, Hochseilgarten, Minigolf, Restaurant, Miniatureisenbahn und mehr.

Details zur Buchung
Der Gesamtpreis setzt sich zusammen aus einer einmaligen Pauschale (pro Buchung) für die Endreinigung, Bettwäsche und Handtücher und andere einmalige Kosten, dem Mietpreis pro Nacht (pro Nacht) und der Kurtaxe pro Nacht (pro Erwachsener/Kind und pro Nacht) sowie den Website-Gebühren (ortsspezifisch).

In diesem Gesamtpreis sind folgende Leistungen enthalten:
- unser herzlicher Empfang und unsere Unterstützung während Ihres Aufenthalts
- WIFI
- bei Ihrer Ankunft bezogene Betten mit unserer Bettwäsche und unseren Handtüchern
- ein umweltfreundliches Willkommenspaket (neu für Winter 2023/4)
- volle Nutzung der privaten Jacuzzi (ab dem Tag nach Ihrer Ankunft)
- volle Nutzung der privaten Sauna
- Brennholz (angemessene Nutzung)
- Kreditkartengebühren
- Strom und Heizung
- Endreinigung
- Kurtaxe für die zum Zeitpunkt der Anfrage/Buchung angegebene Anzahl von Erwachsenen/Kindern. Bitte beachten Sie, dass aufgrund der Einbeziehung der Kurtaxe in die Berechnung der Preis je nach der Anzahl der Personen, die bleiben werden, variiert. Als Erwachsene gelten Personen über 16 Jahre und Kinder von 6 bis 15 Jahren. Kinder unter 6 Jahren müssen bei der Buchung nicht angegeben (und auch nicht bezahlt) werden. Bitte geben Sie sie jedoch im Feld "Besondere Wünsche" an, damit wir sie bei der Vorbereitung der Ankunft berücksichtigen können.
- kostenlose Sommer-Skipässe für die bei der Buchung angegebene Anzahl von Erwachsenen/Kindern (Anfang Juli bis Ende August)
- die Möglichkeit, nach der Buchung eines Winterurlaubs bei uns (Dezember bis April) Skikurse (15 %) und Skiverleih (15 %) vergünstigt zu kaufen (Bedingungen gelten).

Nicht im Preis inbegriffen:
- Bei der Ankunft bitten wir Sie um eine Vorautorisierung Ihrer Kreditkarte für den Fall, dass bei der Abreise ein Schaden nicht bezahlt wird (bis zu 1000 CHF). Die Kaution wird storniert, wenn nach Ihrer Abreise keine unbezahlten Schäden festgestellt werden.
- Brennholz (22 CHF pro 20-25kg Kiste von der Agentur, oder vom Supermarkt)
- Es gibt keinen Kamin in der Wohnung
- Internet ist in dieser Unterkunft nicht installiert. Auf Anfrage stellen wir Ihnen gegen einen Aufpreis von 69 CHF für eine Woche oder 119 CHF für zwei Wochen ein tragbares High-Speed-WIFI-Gerät für Ihren privaten Gebrauch zur Verfügung.
- Hunde nicht erlaubt
- Die Reinigungskosten für den Hund sind nicht inbegriffen (50CHF pro Aufenthalt, wo erlaubt)
- Die Reinigungskosten für Hunde sind nicht inbegriffen (50CHF pro Aufenthalt, in Ausnahmefällen auf Anfrage)
- Nur die Endreinigung ist im Grundpreis inbegriffen. Wenn Sie während Ihres Aufenthaltes eine zusätzliche Reinigung wünschen, kann dies auf Anfrage arrangiert werden.
- Bettwäsche und Handtücher werden bei Ihrer Ankunft gestellt. Wenn Sie während Ihres Aufenthaltes ein zusätzliches Set Bettwäsche und Handtücher benötigen, kann dies für 22 CHF pro Person arrangiert werden.
- Die Standardanreise ist ab 16.00 Uhr und die Abreise bis 10.00 Uhr. Eine vorzeitige Anreise ab 14.00 Uhr kann bis zu einer Woche im Voraus für Samstagsanreisen im Winter und in der Hochsaison im Sommer gebucht werden. 

Das bedeutet, dass wir keine Garantie für die Verfügbarkeit über das hinaus geben können, was Sie auf diesem Online-Buchungsportal sehen. Wir empfehlen Ihnen daher, innerhalb von 48 Stunden zu bestätigen, um die Reservierung zu sichern. Sie können sofort über das sichere Online-Buchungsportal mit dem Link auf dieser Seite buchen und per Kreditkarte bezahlen. 50% des Gesamtbetrags sind bei der Reservierung fällig, der Restbetrag ist 2 Monate vor der Ankunft zu zahlen.

 Stornierungspolitik

Kostenlose Stornierung* aus beliebigen Gründen innerhalb von 7 Tagen nach der Buchung.  

 - Mehr als 90 Tage vor der Ankunft - 95% Erstattung
 - Von 30 bis 90 Tage vor der Ankunft - 70% Erstattung** 
 - Weniger als 30 Tage vor der Ankunft - 10% Erstattung**

*Bitte beachten Sie, dass unsere Rückerstattungsrichtlinien nicht die Gebühren abdecken, die an eine Buchungswebsite gezahlt wurden, da sich diese Gebühren unserer Kontrolle entziehen. Wir können daher nur 100% des von Ihnen gezahlten Preises zurückerstatten, wenn Sie direkt bei 4vallees4saisons buchen, andernfalls muss die Rückerstattung der Gebühren für die Buchungswebsite separat beantragt werden. 

**Wenn es uns gelingt, den Urlaub an einen anderen Kunden weiterzuverkaufen, können wir Ihre Rückerstattung auf maximal 85% erhöhen, abhängig von der erzielten Wiederverkaufssumme. 

La Tzoumaz Chalet Chaupine
Für Sie bereitgestellt von 4vallees4saisons

Grosse und klassische Ferienwohnung in La Tzoumaz, 4 Vallees, Schweiz für 12 Personen. Die Wohnung liegt in einer bergischen Umgebung.

Die Ferienwohnung hat 5 Schlafzimmer, 4 Badezimmer und 1 Gästetoilette, verteilt über 3 Etagen. Die Unterkunft bietet einen Garten mit Rasen und einen wunderschönen Blick auf das Tal und die Berge. Die Nähe von Sportaktivitäten und Orten zum Ausgehen macht dies zu einer geeigneten Ferienwohnung um Ihre Ferien in Schweiz zu verbringen mit Familie und Freunden.

Interieur der Ferienwohnung

  • Ferienwohnung mit 3 Etagen
  • Mezzanine mit Fernsehen und DVD-Player
  • Wohn-/Esszimmer
  • Offener Kamin im Wohnzimmer (Holz)
  • Balkon
  • 5 Schlafzimmer, 4 Badezimmer und 1 Gästetoilette
  • Kabelfernsehen
  • Hauswirtschaftsraum mit Waschmaschine und Trockner

Küche

  • Wohnküche mit Induktionsherd, Elektroofen, Mikrowelle, Geschirrspülmaschine, Kühlschrank, Gefrierschrank, Eiswürfelmaschine, Kaffeemaschine, Wasserkocher, Mixer und Toaster

Schlafzimmer und Badezimmer

  • Schlafzimmer mit Kingsize Bett (von 195 x 180cm) und mit Badezimmer ensuite
  • Schlafzimmer mit 4 Etagenbetten (von 195 x 90cm), Fernsehen und DVD-Spieler
  • Schlafzimmer mit 2 Einzelbetten (von 195 x 90cm) und Fernsehen
  • Schlafzimmer mit 2 Einzelbetten (von 195 x 90cm)
  • Schlafzimmer mit 2 Einzelbetten (von 195 x 90cm) und mit Badezimmer ensuite
  • ensuite Badezimmer mit Einzelwaschbecken, Badewanne, Dusche, Toilette und Föhn
  • Badezimmer mit Doppelwaschbecken, Badewanne, Dusche, Toilette und Föhn
  • ensuite Badezimmer mit Einzelwaschbecken, Dusche, Toilette und Föhn
  • Badezimmer mit Sauna, Einzelwaschbecken, Dusche, Toilette und Föhn

Aussen

  • Garten mit Rasen
  • Terrasse
  • Barbecue
  • Freisitz und Essplatz im Freien
  • 3 private Parkplätze

Mehr Information

  • Skipiste und Skilift innerhalb von 2 Kilometern der Wohnung
  • nächster Ort: La Tzoumaz (innerhalb von 2 Kilometern der Wohnung)
  • nächste(s) Ufer oder Küste: Lac & Parc des Iles (innerhalb von 25 Kilometern der Wohnung)
  • nächster Park: Defis de la Riviere (innerhalb von 4 Kilometern der Wohnung)
  • nächster Flughafen: GVA ( > 100 Kilometern der Wohnung)
  • zweitnächster Flughafen: ZRH ( > 100 Kilometern der Wohnung)
  • öffentliche Verkehrsmittel: Bus innerhalb von 1000 Metern und Zug innerhalb von 25 Kilometern der Wohnung
  • Rauchen nicht erlaubt
  • Haustiere sind nicht erlaubt
  • Die Unterkunft ist sehr geeignet für Familien mit Kindern, Photositzungen und Yogastunden

Anlagen und Dienstleistungen enthalten im Mietpreis der Ferienwohnung

  • Rechner und Internet (WiFi)
  • Staubsauger und Bügeleisen und-brett
  • Bettwäsche und Handtücher
  • Tischtennis
  • Fußbodenheizung
  • Sauna
  • Kinderbetten/Babybetten (auf Anfrage)

Unterhaltung und Freizeitaktivitäten für Ihre Ferien in La Tzoumaz, 4 Vallees

  • Bar (innerhalb von 5 Kilometern von der Wohnung)
  • Wasserpark (Les Bains de Saillon) (innerhalb von 25 Kilometern von der Wohnung)

Sehenswürdigkeiten und Kultur in La Tzoumaz, 4 Vallees

  • Kirche (Chapelle de l'Ascension) (innerhalb von 5 Kilometern von der Unterkunft)
  • Monument (La Vidondee) und architektonisches Gebäude (Iserables Raccards) (innerhalb von 25 Kilometern von der Unterkunft)

Sportaktivitäten

  • Wandern, Mountainbiking und Radfahren (innerhalb von 1000 Metern der Wohnung)
  • Tennis, Skifahren und Klettern (innerhalb von 5 Kilometern der Wohnung)
  • Angeln (innerhalb von 10 Kilometern der Wohnung)
  • Surfen (innerhalb von 25 Kilometern der Wohnung)
Mehr...
Weniger...

Bitte beachten Sie, dass für diese Unterkunft eine Kaution in Höhe von Fr 1.000,00 hinterlegt werden muss. Für weitere Informationen beachten Sie bitte die Buchungsbedingungen.

Offizielle Identifikationsnummer der Unterkunft: 1190700

WICHTIG ZU WISSEN: Die Preise für Chalet Chalet Chaupine in La Tzoumaz sind in der Preisliste pro Woche inklusive Nebenkosten angegeben. Das bedeutet nicht, dass Sie immer eine Woche mieten sollten. Außerhalb der Hochsaison können Sie Ihren An- und Abreisetag durch Anklicken des Verfügbarkeitskalenders mit den gewünschten Daten frei wählen, die Miete wird automatisch berechnet. Auf Wunsch können Sie direkt online buchen und sofort bestätigen.

Ausstattung Chalet Chaupine

  • Bars und Restaurants innerhalb von 2 km.
  • Bettwäsche im Preis inbegriffen
  • CD oder DVD
  • Dreistöckige Unterkunft.
  • Echtzeit-Verfügbarkeitskalender online
  • Fahrrad-Routen innerhalb von 200 m.
  • Fernseher
  • Garten
  • Gebäudegröße 250 m2.
  • Geschirrspüler
  • Grundstücksgröße 669 m2.
  • Handtücher
  • Heizung
  • Internetanschluss
  • Klettersteig innerhalb von 3 km.
  • Mikrowelle
  • Mountainbike-Strecken innerhalb von 200 m.
  • Nichtraucher-Unterkunft
  • Offener Kamin
  • Offener Kamin im Freien / Grill
  • Privater Parkplatz
  • Satelliten-/Kabel-TV
  • Sauna
  • Skilift innerhalb von 2 km.
  • Supermarkt innerhalb von 2 km.
  • Tennisplatz innerhalb von 2 km.
  • Tischtennis
  • Unterkunft geeignet für die angegebene Personenanzahl.
  • Wanderwege innerhalb von 200 m.
  • Waschmaschine und Trockner
  • Zugang zur Skipiste innerhalb von 2 km.

Verfügbarkeit

Klicken Sie auf das An- und Abreisedatum, um den Mietpreis zu berechnen.
Verfügbar
Ausgewählte Termine
Verfügbar auf Anfrage
Preise auf Anfrage
Ankunft nicht erlaubt
Abreise nicht erlaubt
Nicht verfügbar
April 2026
MoDiMiDoFrSaSo
  12345
6789101112
13
14
15
16
17
18
19
20
21
22
23
24
25
26
27
28
29
30
   
       
Mai 2026
MoDiMiDoFrSaSo
    
1
2
3
4
5
6
7
8
9
10
11
12
13
14
15
16
17
18
19
20
21
22
23
24
25
26
27
28
29
30
31
       
Juni 2026
MoDiMiDoFrSaSo
       
12345
6
7
8
9
10
11
12
13
14
15
16
17
18
19
20
21
22
23
24
25
26
27
28
29
30
     
Juli 2026
MoDiMiDoFrSaSo
  
1
2
3
4
5
678910
11
12
13
14
15
16
17
18
19
2021222324
25
26
27
28
29
30
31
  
       
August 2026
MoDiMiDoFrSaSo
     
1
2
3
4
5
6
7
8
9
10111213141516
1718192021
22
23
24
25
26
27
28
29
30
31
      
September 2026
MoDiMiDoFrSaSo
 
1
2
3
4
5
6
7
8
9
10
11
12
13
14151617181920
2122232425
26
27
28
29
30
    
       
Oktober 2026
MoDiMiDoFrSaSo
   
1
2
3
4
5
6
7
8
9
10
11
12
13
14
15
16
17
18
19
20
21
22
23
24
25
26
27
28
29
30
31
 
       
November 2026
MoDiMiDoFrSaSo
      
1
2
3
4
5
6
7
8
9
10
11
12
13
14
15
16
17
18
19
20
21
22
23
24
25
26
27
28
29
30
      
Dezember 2026
MoDiMiDoFrSaSo
 
1
2
3
4
5
6
7
8
9
10
11
12
13
14
15
16
17
18
19
20
21222324252627
28293031   
       
Januar 2027
MoDiMiDoFrSaSo
    123
45678
9
10
11
12
13
14
15
16
17
18
19
20
21
22
23
24
25262728293031
       
Februar 2027
MoDiMiDoFrSaSo
       
1234567
89101112
13
14
15
16
17
18
19
20
21
22
23
24
25
26
27
28
       
März 2027
MoDiMiDoFrSaSo
       
1
2
3
4
5
6
7
8
9
10
11
12
13
14
15
16
17
18
19
20
21
22
23
24
25
26
27
28
293031    
April 2027
MoDiMiDoFrSaSo
   12
3
4
5
6
7
8
9
10
11
12
13
14
15
16
17
18
19
20
21
22
23
24
25
26
27
28
29
30
  
       
Mai 2027
MoDiMiDoFrSaSo
     
1
2
3
4
5
6
7
8
9
10
11
12
13
14
15
16
17
18
19
20
21
22
23
24
25
26
27
28
29
30
31
      
Juni 2027
MoDiMiDoFrSaSo
 
1
2
3
4
5
6
7
8
9
10
11
12
13
14
15
16
17
18
19
20
21
22
23
24
25
26
27
28
29
30
    
       

Karte

Bewertungen

Nachfolgend sehen sie die durchschnittliche Kundenbewertung für Chalet Chalet Chaupine, jede einzelne Kategorie des Mietobjektes, sowie die generelle Bewertung.

Die Bewertungsskala jeder Kategorie geht von 1 bis 10, wobei 10 die höchste und 1 die niedrigste Punktzahl jeder Kategorie darstellt.

9 Durchschnittliche Bewertung 26 Bewertungen
Innenausstattung: 9,2
Aussenbereich: 8,5
Privatsphäre und Stille: 9,1
Garten und Pool: 8,5
Aussicht: 9,3
Küche: 8,8
Badezimmer: 9,4

Sie sind noch nicht bereit zu buchen? Stellen Sie Ihre Fragen hier

Pflichtfeld
Falsches Format
Pflichtfeld
Pflichtfeld
Um fortzufahren, müssen Sie unsere Datenschutzerklärung akzeptieren
Open small dialog
Open medium dialog
Open large dialog

4vallees4saisons.com

Open medium dialog