Chalet Chaupine

Chalet for 12 guests in La Tzoumaz, 4 Vallees

View Photos

Description

Chalet Chaupine in La Tzoumaz

Highlights
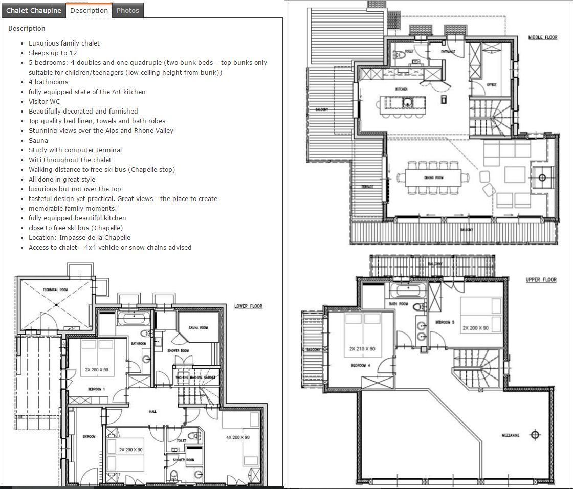
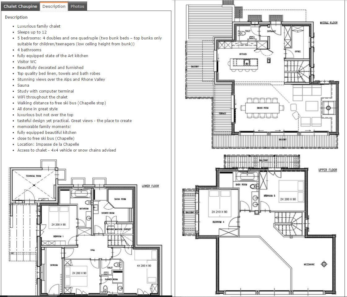
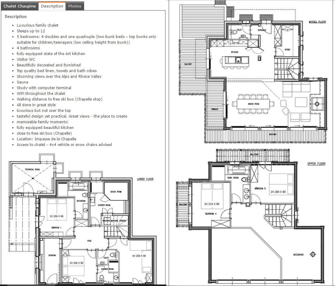
This stunning 5-bedroom chalet with 4.5 bathrooms, sauna & outdoor table tennis sleeps up to 12 people across three stories.  Although the chalet is 2km by road from the ski-lift and village amenities, there is a footpath that leads to the village in less than 350m. 

Bedrooms and bathrooms
In total, there are five bedrooms, four bathrooms, two guest WCs. 

The lower floor sleeps 8 people in three bedrooms, with three bathrooms:
- Bedroom with two separate twin beds, ensuite bathroom with bath, spacious shower, WC, sink.  Double doors open onto the sunny terrace.
- Bedroom with double bed (two mattresses that cannot be separated), ensuite bathroom with shower, WC, sink.  Double doors open onto the sunny terrace.
- Children's bedroom with full-size single bunk beds for 4 people, large flatscreen TV and DVD-player.
- Sauna bathroom (with sauna, shower and sink), and guest WC.

The main living floor has a guest WC.

The upper floor sleeps 4 people in two bedrooms with one bathroom:
- Twin bedroom with two extra-long (210 cm) beds and doors to balcony, flatscreen TV.
- Twin bedroom with two separate beds and doors to balcony
- Large, shared bathroom with double sink, bath, spacious shower and WC

La Tzoumaz Chalet Chaupine is equipped with a high chair and a folding travel cot (bedding not provided) suitable for children under 2 years old, and a second is available on demand on arrival.  Please note that in accordance with the manufacturer's safety instructions, additional mattresses are not provided with the cots.

Equipment
The main double-height living area is the central masterpiece, with superb views over the Rhone valley and the surrounding mountains.  Here, the chalet structural design emphasises feelings of openness and space, with plenty of light streaming in from the large glass doors and windows that expose the stunning scenery all around.  The carefully selected furnishings and fittings separate this huge space into a cosy lounge area focused around the open fireplace, a modern kitchen with cooking island and bar to seat five people, and a dining area that comfortably seats 12 around the large table.  The fully-fitted kitchen has everything you might need for your hioliday cooking, including oven, 4-ring hob, separate freezer, microwave, kettle, toaster, electric filter coffee-machine, Nespresso coffee-machine plus 2 fondue sets and 2 raclette sets.

Patio doors on this level lead to the balcony, terrace and upper garden. The outside garden has two levels, great for summer barbecues, dinners on the large outside table, a game of table tennis or lounging on the deck chairs. The entrance is on the lower floor through the ski-room, which has enough space for ski gear for 12 people and a separate heater to ensure gloves and ski boots are comfortable and dry again the next day.  

There is a washing machine, dryer, iron and ironing board for you to use.

Relaxing
There are so many options in this relaxing chalet if you can distance yourself from checking your emails at the separate office space with internet-ready computer. The sauna is a delight at the end of a long day, and it's impossible not to relax when you step into the incredible living/dining area. The open fireplace has a full glass shield so it can be used to provide background atmosphere. The mezzanine area overlooks the living room, offering a separate place to read or play games, or for the children to hook up their computer games to the large flatscreen TV, or watch movies on the DVD player. There is outdoor table tennis, and the downstairs children's room transforms into a separate playroom with TV if you need some peace and quiet.

Internet
Chalet Chaupine is equipped with free, high-speed WIFI for your own private use.

Pets
We’re sorry but Chalet Chaupine is a pet-free property. Please browse our selection of pet-friendly chalets if you would like to travel with your pet.

Access and parking
There is a steep uphill footpath that climbs up through the countryside and takes you to the village centre, then to the telecabin. This mountain footpath is not suitable for everyone, especially in snowy or rainy conditions.  It is possible for good skiers to follow this route home in good snow conditions and reach the chalet on skis.

At least one car is advisable in both summer and winter.  There is ample parking for 2 or 3 cars outside the chalet. Winter tyres and/or snow chains are necessary in winter due to frequent snowfalls and the final 150m of steep access road. An alternative parking bay is available 150m from the chalet at the base of the steep access road. Contact us for airport or railway transfers.

Winter
There is a free ski-bus stop just a 200m downhill walk down the road from the chalet. Alternatively, the chalet is located only 350m below the lift and the village. It's a challenging walk uphill with skis, so is not suitable for erveryone. In good conditions, good skiers can then ski back through the gardens to the front door. Otherwise it is only a 2km drive to the large free ski-in and ski-out parking area above the village, from where you can ski down to the telecabin.  The modern high-speed telecabin carries you from La Tzoumaz up to the top of the Savoleyres in less than 8 minutes, from where you can decide to ski back on the quiet La Tzoumaz slopes or ski down to Verbier’s legendary slopes and world-class off-piste opportunities in the vast 4-Valleys ski area. 

Summer
In the peak summer season (from early July to late August), we provide you with free VIP pedestrian lift-passes, half-price mountain-bike daypasses and a range of other discounts. The telecabin link to Verbier operates daily at this time of year from 08:45 to 12:30 and from 13:30 to 16:45, meaning that you can easily access the famous resort as a pedestrian, or accompanied by your bicycle or e-bike. For a small supplement you can even use a variety of mountain lifts to make your way up to Mont Fort at 3300m for the highest fondue in Europe and incredible mountain panoramas that include Mont Blanc and the Matterhorn.

In summer, the area turns into a hiking and mountain biking paradise, with hundreds of kilometres of marked trails criss-crossing the mountains, awash with alpine flowers and a range of wildlife to spot. Visit the Maison de la Foret with its wildlife exhibitions and its Five Senses Nature Trail, and the starting point of many beautiful hikes. The Bisses are relatively flat footpaths that follow the water as it trickles around the mountainsides, where for centuries farmers and villagers channelled the streams for their own uses. They have been preserved and can now be an incredible way to spend a day or more on easy hikes with stunning views across the Rhone Valley or over to the Massif des Combins. We will provide you with plenty of tourist information including our favourite suggestions for day trips that are easily reachable from La Tzoumaz, from spectacular gorge walks, cheese factories and roman festivals to rainy-day ideas such as underground lake tours. The road that winds up the mountain-top to the panoramic Croix-de-Coeur Cafe-Restaurant opens as soon as the snow melts and from here you can continue the drive (or cycle) all the way down into Verbier. Try not to miss the Swiss National Celebrations in La Tzoumaz on August 1st, or the famous festival of live music performances, the Verbier Festival, which runs from mid-July to the beginning of August.

For families
The centre of La Tzoumaz benefits from an outdoor ice-skating rink in winter, and a children's playground area in summer, with a rope-based agility park alongside more traditional equipment such as slides.  A fun channel system with running water is built into the hillside to provide plenty of entertainment for older children too. 

At the exit of the village the Domus playground is a fabulous spot, often bathed in late afternoon sunshine, with swings, a zipline, see-saw, climbing frames and even old tractors to clamber on.  It is overlooked by an outdoor cafe (check opening hours) providing drinks, snacks and ice-creams. There are rabbits, donkeys, goats, and there is also rock-climbing on the local crag in the background (contact us for equipment and instructors).

The Maison de la Foret has a cafe area for drinks and snacks (check opening hours), wildlife exhibitions and its Five Senses Nature Trail with hands-on activities to borrow such as bird-whistling and learning to draw. The Nature Trail has disabled parking and is accessible to wheelchairs and children's buggies.

Right at the top of the village is the "Defis de la Riviere", which is equipped as an outdoor physical challenge area for older kids on the river.  There are sensory walking areas for younger children and a basket swing, and also a picnic spot nearby.  

A short drive down the valley takes you to the large lake at the Parc des Iles, with its playgrounds, high-ropes park, minigolf, restaurant, miniature train and more. 

Booking details
The total price is composed of a one-off non-variable cost (per booking) to cover final cleaning, bed-linen and towels, and other one-off fees, plus a nightly rental rate (per night) and nightly tourist taxes (per adult/child and per night), plus website fees (site-specific).

This total price includes the following:
- our warm welcome and support during your stay
- WIFI
- beds made up for your arrival with our bedsheets and towels
- an eco-friendly welcome pack (new for Winter 2023/4)
- full use of private sauna
- firewood (fair use)
- credit card charges
- electricity & heating
- final cleaning
- tourist taxes for the number of adults/children stated at time of enquiry/booking. Please note that due to the inclusion of tourist taxes in the calculation, the price varies according to the number of people who will stay. Adults are classed as over 16 years, and children from 6 to 15 years. At the time of booking there is no need to declare (or pay for) children under 6 years old on the date of travel, however please mention them in the "Special Requests" box so that we can include them in our arrival preparations.
- free summer lift passes for the number of adults/children stated at time of booking (early July to late August)
- the opportunity to buy 15% discounted ski lessons and rental (conditions apply) after booking a winter holiday with us (December to April).

Not included in the price:
- On arrival we will ask for a credit card pre-authorisation for use in case of breakage unpaid at departure (up to 1000 CHF). The deposit will be cancelled when no unpaid damage is found after your departure.
- Dogs not allowed
- Only the exit cleaning is included in the base price so if you wish to have extra cleaning during your stay then this can be arranged on request.
- Bedding and towels are provided for your arrival. If you require an extra set of bedding and towels during your stay then this can be arranged for 22CHF per person.
- Standard arrival is from 16h00, and departure is by 10h00. Early Arrival from 14h00 can be purchased up to one week in advance of Saturday arrivals in winter and peak summertime.

We operate a strictly "first-paid = first-reserved" basis for bookings which means we cannot guarantee availability beyond what you see on this online booking portal and so we recommend you confirm within 48h in order to secure the reservation. You can book and pay by credit card right now through the secure online booking portal using the link on this page. 50% of the total amount is due upon reservation and the remainder is payable 2 months before arrival.

Cancellation policy
Free cancellation* for any reason within 7 days of booking.  

 – More than 90 days before arrival – 95% refund
 – From 30 to 90 days before arrival – 70% refund** 
 – Less than 30 days before arrival – 10% refund**

*Please note that our refund policies do not cover the fees paid to any booking website, as these fees are beyond our control so we can only refund based on 100% of the price you paid if you book directly with 4vallees4saisons, and otherwise the refund of booking site fees must be requested separately from the booking site. 

**If we are able to resell the holiday to another client, we can increase your refund to a maximum of 85%, depending on the resale amount achieved.      


La Tzoumaz Chalet Chaupine
Brought to you by 4vallees4saisons

 

Large and classic holiday house in La Tzoumaz, 4 Vallees, Switzerland for 12 persons. The house is situated in a mountainous area.

The house has 5 bedrooms, 4 bathrooms and 1 guest toilet, spread over 3 levels. The accommodation offers a lawned garden and wonderful views of the valley and the mountains. The vicinity of sports activities and places to go out makes this a fine holiday house to spend your holidays in Switzerland with family or friends.

Interior of this holiday home

  • 3 level holiday house
  • open mezzanine with television and DVD player
  • living/dining room
  • fireplace in living room (wood)
  • balcony
  • 5 bedrooms, 4 bathrooms and 1 guest toilet
  • cable television
  • utility room with washing machine and tumble dryer

Kitchen

  • open kitchen with induction cooker, electric oven, microwave, dishwasher, refrigerator, freezer, icemaker, coffee machine, electric kettle, mixer and toaster

Bedrooms and bathrooms

  • bedroom with king size bed (measuring 190 by 180cm) and bathroom en-suite
  • bedroom with 4 bunk beds (measuring 190 by 90cm), television and DVD player
  • bedroom with 2 single beds (measuring 190 by 90cm) and television
  • bedroom with 2 single beds (measuring 190 by 90cm)
  • bedroom with 2 single beds (measuring 190 by 90cm) and bathroom en-suite
  • en-suite bathroom with single washbasin, bath, shower, toilet and hairdryer
  • bathroom with double washbasin, bath, shower, toilet and hairdryer
  • en-suite bathroom with single washbasin, shower, toilet and hairdryer
  • bathroom with sauna, single washbasin, shower, toilet and hairdryer

Exterior of this holiday home

  • lawned garden
  • terrace
  • barbecue
  • outside sitting area and outside dining area
  • 3 private parking spaces

More information

  • skislope and skilift within 2 kilometers of the house
  • nearest town: La Tzoumaz (within 2 kilometers of the house)
  • nearest riverbank or shore: Lac & Parc des Iles (within 25 kilometers of the house)
  • nearest park: Defis de la Riviere (within 4 kilometers of the house)
  • nearest airport: GVA ( > 100 kilometers of the house)
  • second nearest airport: ZRH ( > 100 kilometers of the house)
  • public transport: bus within 1000 meters and train within 25 kilometers of the house
  • smoking not allowed
  • pets are not allowed
  • The accommodation is very suitable for families with children, photo sessions and yoga sessions

Facilities and services included in the rental price of this holiday home

  • computer and internet (WiFi)
  • vacuum cleaner and iron and ironing board
  • bed linen and towels
  • table tennis
  • floor heating
  • sauna
  • children beds/cots (on demand)

Entertainment and leisure activities for your holidays in La Tzoumaz, 4 Vallees

  • bar (within 5 kilometers from the house)
  • water park (Les Bains de Saillon) (within 25 kilometers from the house)

Sights and culture in La Tzoumaz, 4 Vallees

  • church (Chapelle de l'Ascension) (within 5 kilometers from the accommodation)
  • monument (La Vidondee) and architectural building (Iserables Raccards) (within 25 kilometers from the accommodation)

Sports

  • hiking, mountainbiking and cycling (within 1000 meters of the house)
  • tennis, skiing and climbing (within 5 kilometers of the house)
  • fishing (within 10 kilometers of the house)
  • surfing (within 25 kilometers of the house)
More...
Less...

Please note that for this accommodation a security deposit of Fr 1.000,00 is required. For more information please see our Rental Conditions.

Official accommodation identification number: 1190700

IMPORTANT TO KNOW: The prices for Chalet Chalet Chaupine in La Tzoumaz are indicated on the price list per week including additional costs. This does not mean that you should always rent a week. Outside the high season you can freely choose your arrival and departure day by clicking on the availability calendar the desired dates, the rent is automatically calculated. If desired, you can book directly online with immediate confirmation.

Facilities

  • Access to the ski piste at less than 2 km.
  • Accommodation suitable for the specified number of people.
  • Bars and restaurants within 2 km.
  • Bedlinen included in rental price
  • Building size 250 m2.
  • Cable/Satellite television
  • CD or DVD
  • Climbing within 3 km.
  • Cycling within 200 m.
  • Dishwasher
  • Garden
  • Heating
  • Hiking trails within 200 m.
  • Internet connection
  • Microwave
  • Mountain bike trails within 200 m.
  • Non-smoking accommodation
  • Open fireplace
  • Outdoor fireplace / Barbecue
  • Plot size 669 m2.
  • Private parking
  • Real-time online availability calendar
  • Sauna
  • Ski lift within 2 km.
  • Supermarket within 2 km.
  • Table tennis available
  • Television
  • Tennis court within 2 km.
  • Three-level accommodation.
  • Towels
  • Washing machine and dryer

Availability

Click on the arrival and departure date to calculate the rental price.
Available
Selected dates
Available on request
Prices on request
Arrival not allowed
Departure not allowed
Unavailable
December 2025
MoTuWeThFrSaSu
       
1234567
891011121314
15161718192021
22232425262728
293031    
January 2026
MoTuWeThFrSaSu
   1234
567891011
12131415161718
19202122232425
262728293031 
       
February 2026
MoTuWeThFrSaSu
      1
2345678
9101112131415
16171819202122
232425262728 
       
March 2026
MoTuWeThFrSaSu
      1
2345678
9101112131415
16171819202122
23242526272829
3031     
April 2026
MoTuWeThFrSaSu
  123
4
5
6
7
8
9
10
11
12
13
14
15
16
17
18
19
20
21
22
23
24
25
26
27
28
29
30
   
       
May 2026
MoTuWeThFrSaSu
    
1
2
3
4
5
6
7
8
9
10
11
12
13
14
15
16
17
18
19
20
21
22
23
24
25
26
27
28
29
30
31
       
June 2026
MoTuWeThFrSaSu
       
1
2
3
4
5
6
7
8
9
10
11
12
13
14
15
16
17
18
19
20
21
22
23
24
25
26
27
28
29
30
     
July 2026
MoTuWeThFrSaSu
  
1
2
3
4
5
678910
11
12
13
14
15
16
17
18
19
20
21
22
23
24
25
26
27
28
29
30
31
  
       
August 2026
MoTuWeThFrSaSu
     
1
2
3
4
5
6
7
8
9
1011121314
15
16
17
18
19
20
21
22
23
24
25
26
27
28
29
30
31
      
September 2026
MoTuWeThFrSaSu
 
1
2
3
4
5
6
7
8
9
10
11
12
13
14
15
16
17
18
19
20
21
22
23
24
25
26
27
28
29
30
    
       
October 2026
MoTuWeThFrSaSu
   
1
2
3
4
5
6
7
8
9
10
11
12
13
14
15
16
17
18
19
20
21
22
23
24
25
26
27
28
29
30
31
 
       
November 2026
MoTuWeThFrSaSu
      
1
2
3
4
5
6
7
8
9
10
11
12
13
14
15
16
17
18
19
20
21
22
23
24
25
26
27
28
29
30
      
December 2026
MoTuWeThFrSaSu
 
1
23456
78910111213
14151617181920
21222324252627
28293031   
       
January 2027
MoTuWeThFrSaSu
    123
45678910
11121314151617
18192021222324
25262728293031
       
February 2027
MoTuWeThFrSaSu
       
1234567
891011121314
15161718192021
22232425262728
       

Map

Reviews

Here you can find the reviews by our guests who stayed at Chalet Chalet Chaupine

The scale in each category runs from 1 to 10, with 10 being the best score for that category.

9 Rating average 25 Reviews
Interior: 9,2
Exterior: 8,4
Peace and tranquillity: 9
Garden and swimming pool: 8,4
Views: 9,5
Kitchen: 8,9
Bathrooms: 9,4

Not yet ready to book? Ask your questions here

Required field
Wrong format
Required field
Required field
To proceed, you must accept our privacy policy
Open small dialog
Open medium dialog
Open large dialog

4vallees4saisons.com

Open medium dialog